--- Anfragen bitte AUSSCHLIESSLICH per Mail unter Angabe Ihrer vollständigen Kontaktdaten ---
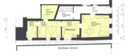
Die ruhig gelegene 2-Zimmer – Wohnung befindet sich im Erdgeschoss eines Mehrfamilienhauses.
Über das helle Wohn-/ Esszimmer gelangt man durch die Küche ins Schlafzimmer, und von dort folgt das Bad mit Dusche, WC und Waschmaschinenanschluss ( ohne Fenster ).
Ein großzügiger Abstellraum ist in der Wohnung vorhanden.
Die Wohnung eignet sich für Singles, oder Pendler.
Ein längerfristiges Mietverhältnis wird angestrebt.
Es handelt sich um eine Nichtraucherwohnung, Haustiere sind nicht erlaubt.
Einbauküche im Mietpreis inbegriffen.
Außenstellplatz: 40 € monatlich
Bezug: ab 01. Januar 2026
--- Nach Ihrer Mail-Anfrage erhalten Sie eine Mieterselbstauskunft von uns; sobald uns diese ausgefüllt und unterzeichnet wieder vorliegt, können wir einen Besichtigungstermin mit Ihnen vereinbaren. Vielen Dank für Ihr Verständnis ---
Wohn-/ Esszimmer, Küche, 1 Schlafzimmer, Bad mit Dusche und WC, Abstellraum
Wir weisen darauf hin, dass die von uns angegebenen Objektinformationen vom Eigentümer stammen, eine Haftung für die Richtigkeit oder Vollständigkeit der Angaben können wir daher nicht übernehmen. Es obliegt daher unseren Kunden, die darin enthaltenen Objektinformationen und Angaben auf ihre Richtigkeit hin zu überprüfen. Anfragen ohne Angabe von vollständigem Namen und Telefonnummer werden von uns nicht beantwortet.
Das Objekt liegt in einer ruhigen Seitenstraße inmitten der Dinkelsbühler Altstadt.
Sie sehen gerade einen Platzhalterinhalt von Google Maps. Um auf den eigentlichen Inhalt zuzugreifen, klicken Sie auf die Schaltfläche unten. Bitte beachten Sie, dass dabei Daten an Drittanbieter weitergegeben werden.
Mehr Informationen91550 Dinkelsbühl, Bayern, Deutschland (auf Google Maps ansehen)
Sie sehen gerade einen Platzhalterinhalt von Facebook. Um auf den eigentlichen Inhalt zuzugreifen, klicken Sie auf die Schaltfläche unten. Bitte beachten Sie, dass dabei Daten an Drittanbieter weitergegeben werden.
Mehr InformationenSie müssen den Inhalt von hCaptcha - Formidable laden, um das Formular abzuschicken. Bitte beachten Sie, dass dabei Daten mit Drittanbietern ausgetauscht werden.
Mehr InformationenSie müssen den Inhalt von reCAPTCHA laden, um das Formular abzuschicken. Bitte beachten Sie, dass dabei Daten mit Drittanbietern ausgetauscht werden.
Mehr InformationenSie müssen den Inhalt von Turnstile laden, um das Formular abzuschicken. Bitte beachten Sie, dass dabei Daten mit Drittanbietern ausgetauscht werden.
Mehr InformationenSie sehen gerade einen Platzhalterinhalt von Instagram. Um auf den eigentlichen Inhalt zuzugreifen, klicken Sie auf die Schaltfläche unten. Bitte beachten Sie, dass dabei Daten an Drittanbieter weitergegeben werden.
Mehr InformationenSie sehen gerade einen Platzhalterinhalt von X. Um auf den eigentlichen Inhalt zuzugreifen, klicken Sie auf die Schaltfläche unten. Bitte beachten Sie, dass dabei Daten an Drittanbieter weitergegeben werden.
Mehr Informationen